Deze charmante woning is pittoresk gelegen naast de grote kerk in Neede. De woning biedt meer ruimte dan je op het eerste gezicht zou denken met een woonoppervlakte van maar liefst 113 m²! Met twee slaapkamers op de eerste verdieping en een badkamer op de begane grond is het een ideale starterswoning.

Bekijk de huispagina van deze woning
Geschakelde woning
Bouwjaar 1921
Aantal slaapkamers 2
Aantal kamers 3
Woonoppervlakte 113 m2
Perceeloppervlakte 70 m2
Inhoud 389 m3
Energielabel Energielabel D

De ligging naast de kerk geeft het geheel een karaktervolle uitstraling, en met winkels en vele voorzieningen letterlijk om de hoek geniet je hier van optimaal wooncomfort en levendigheid. De perceeloppervlakte is 70 m². Deze woning is gebouwd in 1921, heeft een inhoud van 389 m³ en een gebruiksoppervlakte woonruimte van ca. 113 m². De indeling is als volgt:

Begane grond:
Entree/hal met trapopgang. De woonkamer is voorzien van openslaande deuren. Er is een open keuken met een vaste kast en een inbouwkeuken voorzien van een vaatwasser, koelkast, 4-pits gaskookplaat, afzuigkap en combimagnetron. De keuken biedt toegang tot een hal die leidt naar buiten. Bijkeuken met aansluitingen voor de wasmachine en wasdroger, met aangrenzende badkamer voorzien van wastafel, inloopdouche en wandcloset.

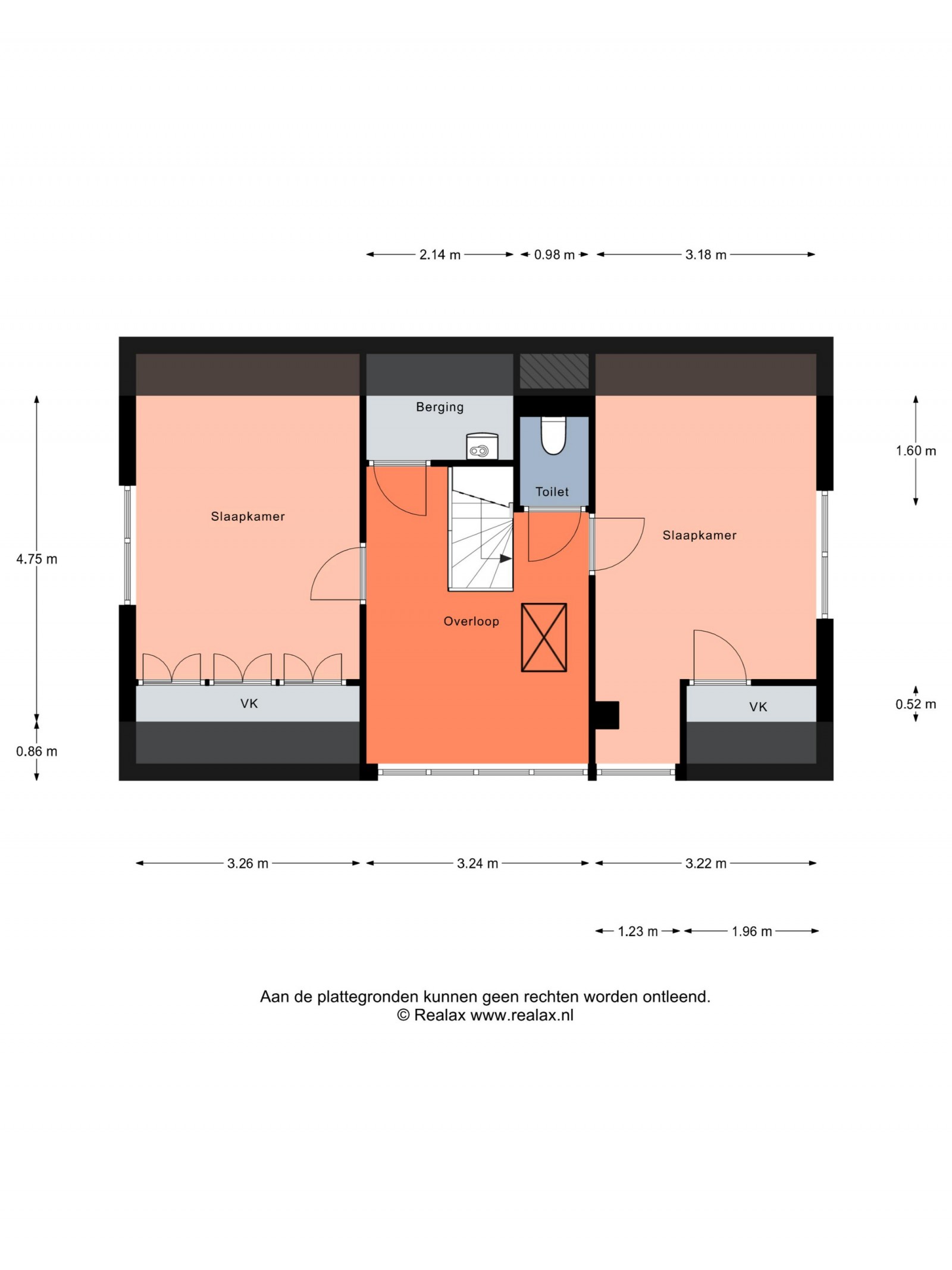
1e Verdieping:
Overloop met toegang tot twee slaapkamers, beide voorzien van vaste kasten. Separaat toilet met wandcloset en een berging met CV-opstelling.

2e Verdieping:
Middels vlizotrap te bereiken vliering. De kenmerken zijn:
– Energielabel D.
– Voorzien van dakisolatie.
– Verwarmd middels een Intergas CV-ketel (bouwjaar 2022).
– De begane grond is voorzien van vloerverwarming (m.u.v. hal en bijkeuken).
– Voorzien van houten kozijnen met isolerende beglazing.
– Airconditioning op de eerste verdieping.
– De buitengevel is deels voorzien van nieuw voegwerk.
– Centrale ligging in het centrum met alle voorzieningen binnen handbereik. Tot zekerheid van de nakoming van de verplichtingen van de koopovereenkomst dient de kopende partij een bankgarantie (10% van de koopsom) te stellen bij een Nederlandse bankinstelling c.q. een waarborgsom (10% van de koopsom) te storten bij de notaris. Aan de gegevens die in de brochure staan vermeld kunnen geen rechten worden ontleend. Aanbiedingen kunnen worden gezien als een uitnodiging tot het doen van een bod. De diensten die Scheers & Roes Makelaars verleent, geschieden onder de voorwaarden van de NVM.

Vergelijkbare objecten