Recent gerenoveerde 2-onder-1 Kapwoning in het centrum van Neede – Energiezuinig met A+++ label en 193 m² woonruimte! Gelegen in het hart van Neede, biedt deze zeer royale 2-onder-1 kapwoning alles wat je zoekt: moderne afwerkingen, veel leefruimte en een uitstekende energieprestatie. De woning is in 2025 volledig gerenoveerd en is uitgerust met volledige isolatie en HR++ beglazing, waardoor het beschikt over het top energielabel A+++.

Bekijk de huispagina van deze woning
2-onder-1-kapwoning
Bouwjaar 1930
Aantal slaapkamers 4
Aantal kamers 6
Woonoppervlakte 193 m2
Perceeloppervlakte 157 m2
Inhoud 614 m3
Energielabel Energielabel A+++

Met maar liefst 193 m² woonoppervlakte, verdeeld over een ruime woonkamer en vier slaapkamers, biedt de woning volop ruimte voor het hele gezin. Het perceel heeft een oppervlakte van 157 m². Deze ruime woning, oorspronkelijk gebouwd omstreeks 1930, is in 2025 volledig gerenoveerd en biedt modern comfort in een karakteristieke setting. Met een inhoud van ca. 614 m³ en een royale gebruiksoppervlakte van ca. 193 m², is er meer dan voldoende ruimte voor een comfortabel leven. De woning beschikt daarnaast over een externe bergruimte van 11 m². De indeling is als volgt:

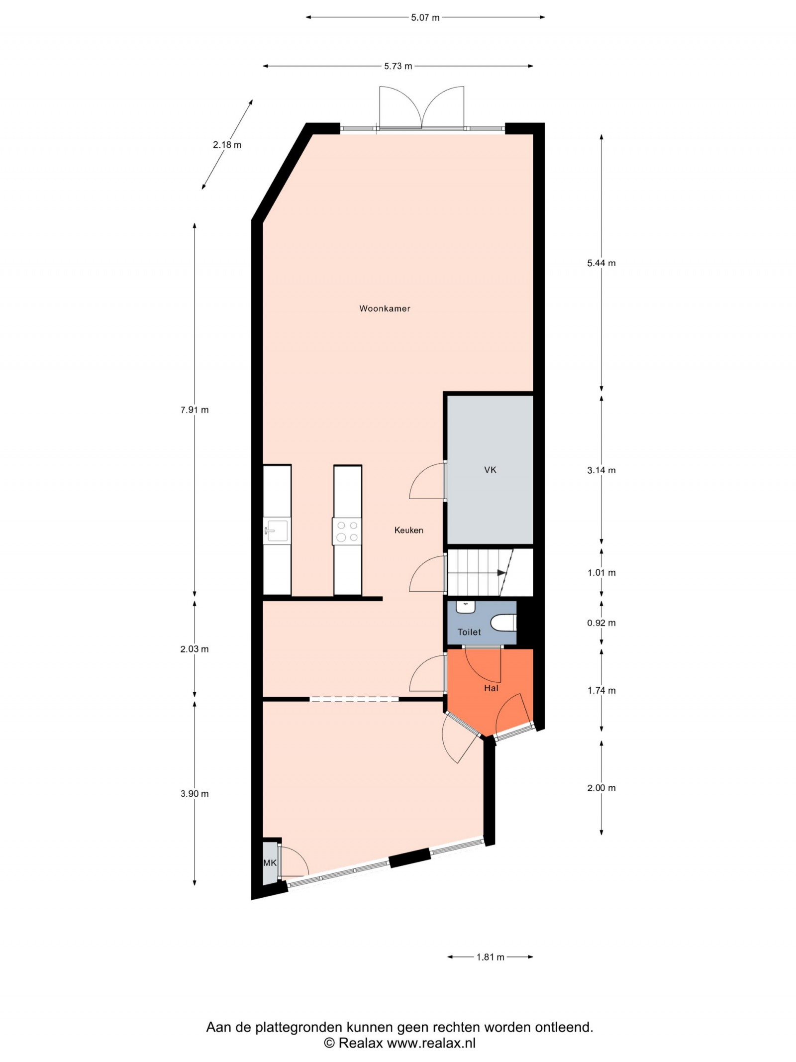
Begane grond
De hal/entree biedt toegang tot het toilet. Aan de voorzijde van het huis bevindt zich een kamer die perfect ingericht kan worden als eetkamer of extra woonkamer. Vanuit deze voorkamer is de ruimte voor de keuken te bereiken, die naar wens nog geplaatst dient te worden. De tuingerichte woonkamer is licht en ruim, met openslaande tuindeuren die toegang geven tot de buitenruimte. Daarnaast is er een royale vaste kast, ideaal voor extra opbergruimte.”

1e verdieping
De overloop biedt toegang tot drie royale slaapkamers, waarvan één met een vaste kast. De badkamer is een ruimte die nog naar wens kan worden ingedeeld en afgewerkt. Daarnaast is er een separate toiletruimte en een praktische berging met aansluiting voor de wasmachine.

2e verdieping
Via een vaste trap is de tweede verdieping te bereiken, waar zich een ruime vierde slaapkamer bevindt. Deze veelzijdige kamer is perfect te gebruiken als werkkamer, hobbyruimte of rustige plek om je creativiteit de vrije loop te laten. Dankzij de dakramen komt er veel natuurlijk licht binnen, wat de ruimte een lichte, luchtige en uitnodigende sfeer geeft. Buitenruimte:
De achtertuin is grotendeels aangelegd met sierbestrating en aan één zijde voorzien van een nieuwe schutting. Daarnaast is er een stenen berging aanwezig, die via een recht van overpad achterom bereikbaar is. Bijzonderheden:
– Verwarmd middels een hybride warmtepomp. De begane grond is voorzien van vloerverwarming.
– Deze woning is in 2025 volledig gerenoveerd en optimaal geïsoleerd, inclusief dak-, vloer- en muurisolatie. Bovendien is de woning voorzien van HR++ beglazing en zijn er 6 zonnepanelen geïnstalleerd. Dankzij deze duurzame maatregelen is de woning uiterst energiezuinig en beschikt het over een indrukwekkend A+++ energielabel!
– Er is voldoende parkeergelegenheid in de nabije omgeving.
– De woning wordt opgeleverd zonder badkamer en keuken, zodat de koper de mogelijkheid heeft om deze geheel naar eigen wens en smaak in te richten. De aanschaf en installatie van de keuken en badkamer dienen door de koper te worden geregeld.
– De woning is gelegen midden in het centrum van Neede, met alle voorzieningen binnen handbereik. Het recent vernieuwde dorpshart is ruim opgezet, voorzien van groen en combineert een gezellige dorpssfeer met moderne faciliteiten! Tot zekerheid van de nakoming van de verplichtingen van de koopovereenkomst dient de kopende partij een
bankgarantie (10% van de koopsom) te stellen bij een Nederlandse bankinstelling c.q. een waarborgsom (10% van de
koopsom) te storten bij de notaris. Aan de gegevens die in de brochure staan vermeld kunnen geen rechten worden ontleend. Aanbiedingen kunnen
worden gezien als een uitnodiging tot het doen van een bod. De diensten die Scheers & Roes Makelaars verleent,
geschieden onder de voorwaarden van de NVM.

Vergelijkbare objecten