In het stadscentrum van Groenlo staat dit karakteristieke winkelpand met maar liefst twee appartementen én de optie om een derde appartement te realiseren. Dankzij de toplocatie zijn alle voorzieningen – van winkels tot horeca – direct bereikbaar. Het perceel heeft een oppervlakte van circa 255 m² en het pand zelf dateert uit 1955, wat het zijn authentieke uitstraling geeft.

Appartement
Bouwjaar 1955
Aantal slaapkamers 3
Aantal kamers 6
Woonoppervlakte 171 m2
Perceeloppervlakte 255 m2
Inhoud 1100 m3

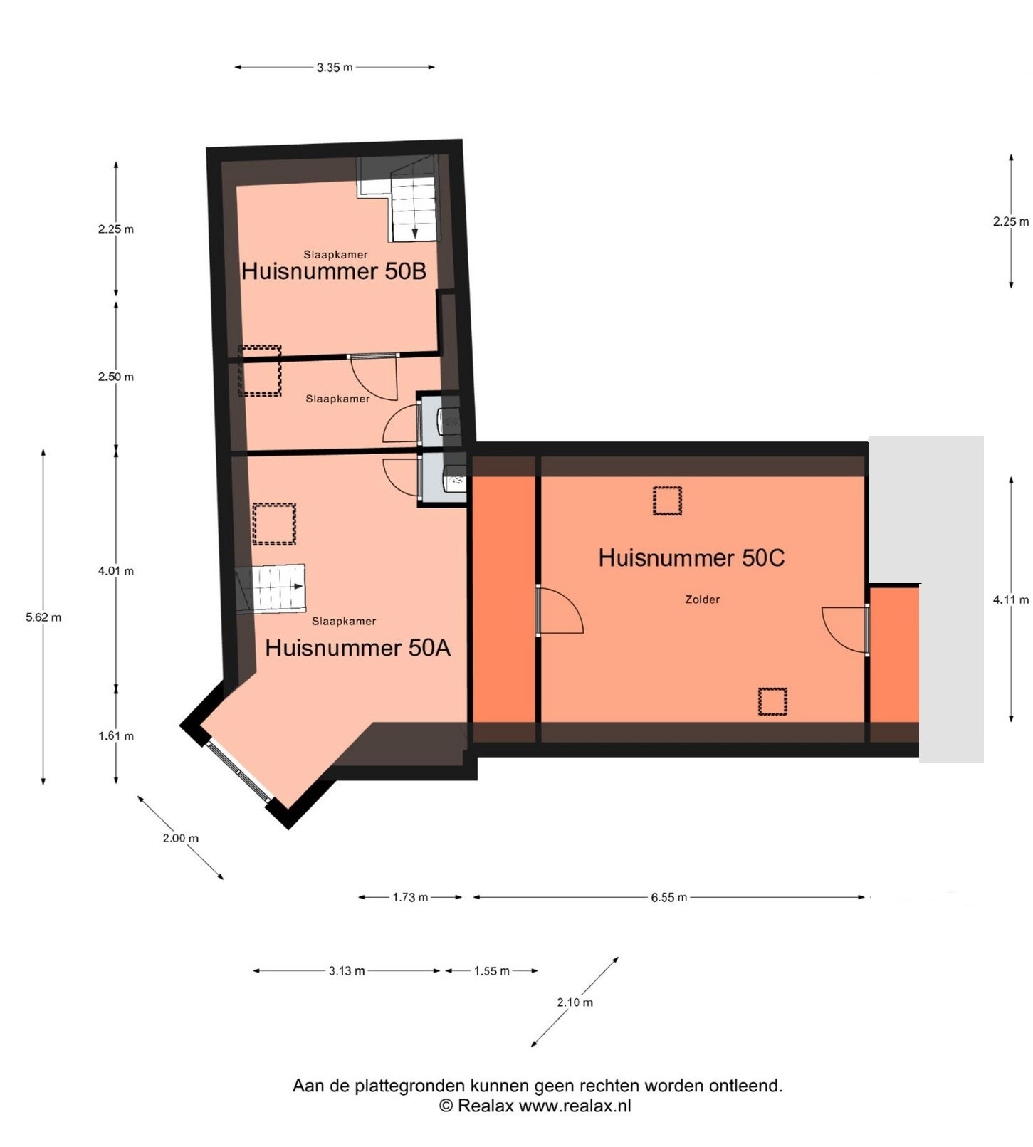
Onderstaand een overzicht van de oppervlaktes:
Beltrumsestraat 24 (winkel) -> oppervlakte winkelruimte ca. 171 m² en de gebouwgebonden buitenruimte is ca. 23 m²;
Notenboomstraat 50a (appartement) -> woonoppervlakte ca. 63 m² en de externe bergruimte is ca. 4 m²;
Notenboomstraat 50b (appartement) -> woonoppervlakte ca. 56 m², gebouwgebonden buitenruimte ca. 17 m² en de externe bergruimte is ca. 4 m²;
Magazijn -> oppervlakte ca. 52 m² en de overige inpandige ruimte is ca. 36 m². De indeling is als volgt:

Beltrumsestraat 24
Begane grond:
Middels de overdekte entree is de royale winkelruimte te bereiken. Vanuit de winkelruimte is de pantry met keukenblok en toilet te bereiken. Notenboomstraat 50a
Appartement:
Woonkamer met uitzicht over het stadscentrum en trapopgang. Openkeuken met inbouwkeuken voorzien van een kookplaat, afzuigkap en koelkast. Ruime badkamer met wastafel, douche, ligbad, toilet en aansluiting voor de wasmachine/wasdroger. Middels de trapopgang in de woonkamer is de ruime slaapkamer te bereiken. Notenboomstraat 50b
Appartement:
Woonkamer met trapopgang en open keuken met inbouwkeuken. De inbouwkeuken is voorzien van een kookplaat, afzuigkap en koelkast. Badkamer met toilet, wastafel en douche. Daarnaast is vanuit de badkamer het dakterras te bereiken. Middels de trapopgang in de woonkamer zijn de twee slaap-/werkkamers te bereiken. Berging:
De Notenboomstaat 50a en 50b beschikken over een gezamenlijke berging. Magazijn:
Momenteel in gebruik als royaal magazijn met zolder, maar met volop mogelijkheden: ook hier kan een appartement worden gerealiseerd. Energielabels
Beltrumsestraat 24 -> energielabel D;
Notenboomstraat 50a -> energielabel D;
Notenboomstraat 50b -> energielabel D;

Parkeren
Er is parkeergelegenheid in de nabije omgeving.

Vergelijkbare objecten